diseño

construcciÓn

INSTALACIÓN

puesta en marcha

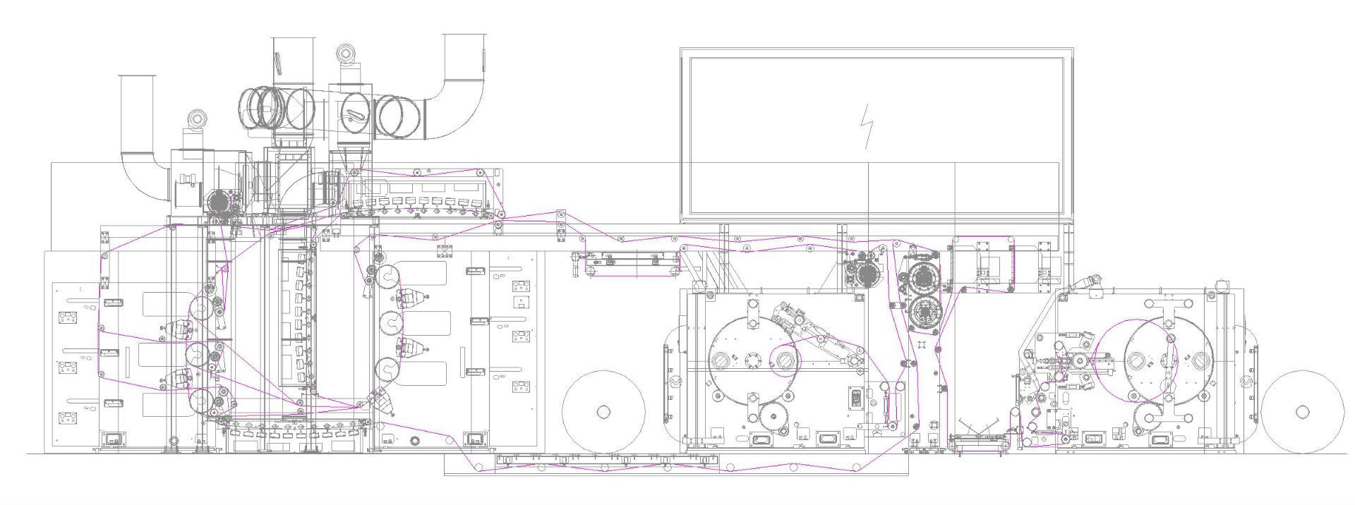
impresora stack 6 colores

impresora flexografica stack de 6 colores gear-less + cnc

Proyectos relacionados

Proyectos relacionados